Not Logged In. Sign In Now | Register
Courtesy of Peace Hills Realty.
Data was last updated 2025-06-25 at 20:18:11 GMT
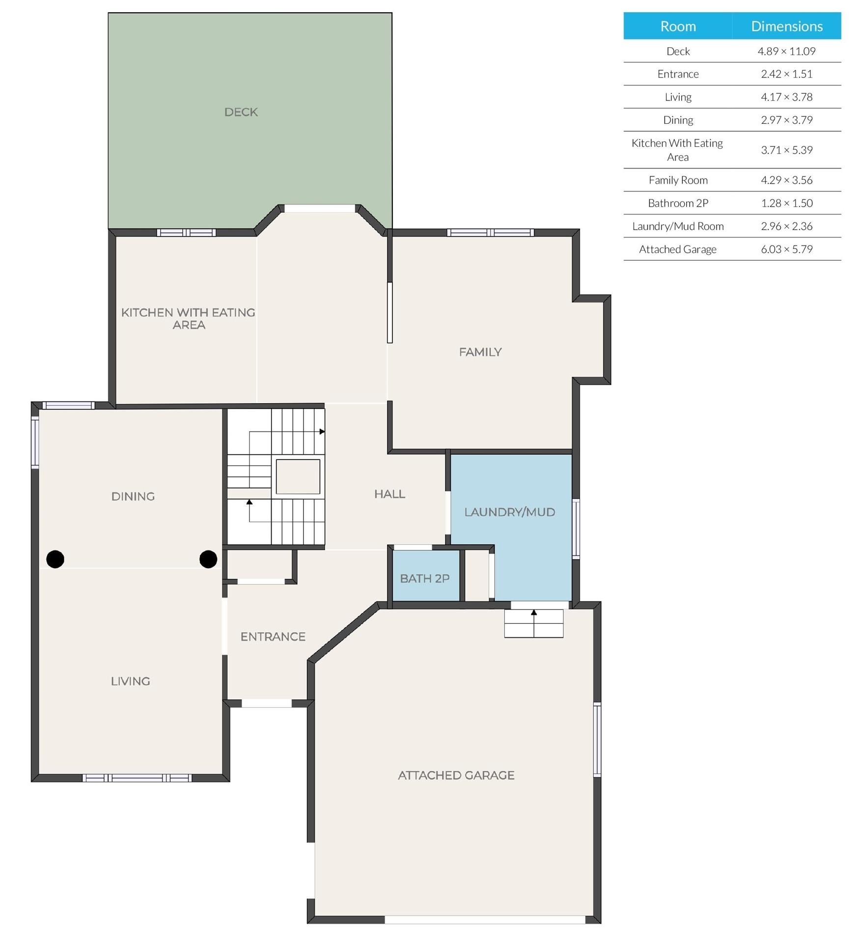
Move in ready, custom built, beautiful family home finished on 3 levels. Nestled in the family friendly Millet community awaits a spectacular 2 story upgraded home. Pride of ownership throughout. Non-smoking, immaculate inside & out, this home offers an upscale interior with boast-worthy exceptional luxury: Wood Burning Fire Place, Newer shingles, siding, garage door & trim (2013); New Fence, Furnace & Central Air Conditioning (2015); New Hot Water Tank (2017); New Fibron Composite Deck, Patio Stones, Re-slope yard (2021), New Garage Furnace, New Wicker Sectional (2021); New Gazebo canvas & netting (2022); New Bosch Dishwasher (2024); New Walk-in-Shower - Ensuite, Vinyl Plank Flooring M/Bath (2025). Bathed in abundant natural light, vaulted ceilings, sophisticated design & an inviting ambiance make it an ideal sanctuary for those seeking a blend of comfort & magnificence.
Listing Information
- Prop. Type:
- Detached Single Family
- Property Style:
- 2 Storey
- Status:
- Active
- City:
- Millet
- MLS® Number:
- E4460813
- Bedrooms:
- 3
- Neighbourhood:
- Millet
- Area:
- Edmonton
- Province:
- Alberta
- Listing Price:
- $439,000
General Information
- Year Built:
- 1992
- Total Square Feet:
- 1797ft2
Additional Information
- Basement Dev:
- Full, Finished
- Parking:
- Double Garage Attached
VIP-Only Information
- Sign-Up or Log-in to view full listing details:
- Sign-Up / Log In
This property is listed by Peace Hills Realty and provided here courtesy of
Kyle Rossiter.
For more information or to schedule a viewing please contact Kyle Rossiter.

Data is deemed reliable but is not guaranteed accurate by the REALTORS® Association of Edmonton.