Not Logged In. Sign In Now | Register
Courtesy of MaxWell Polaris.
Data was last updated 2025-06-25 at 20:18:11 GMT
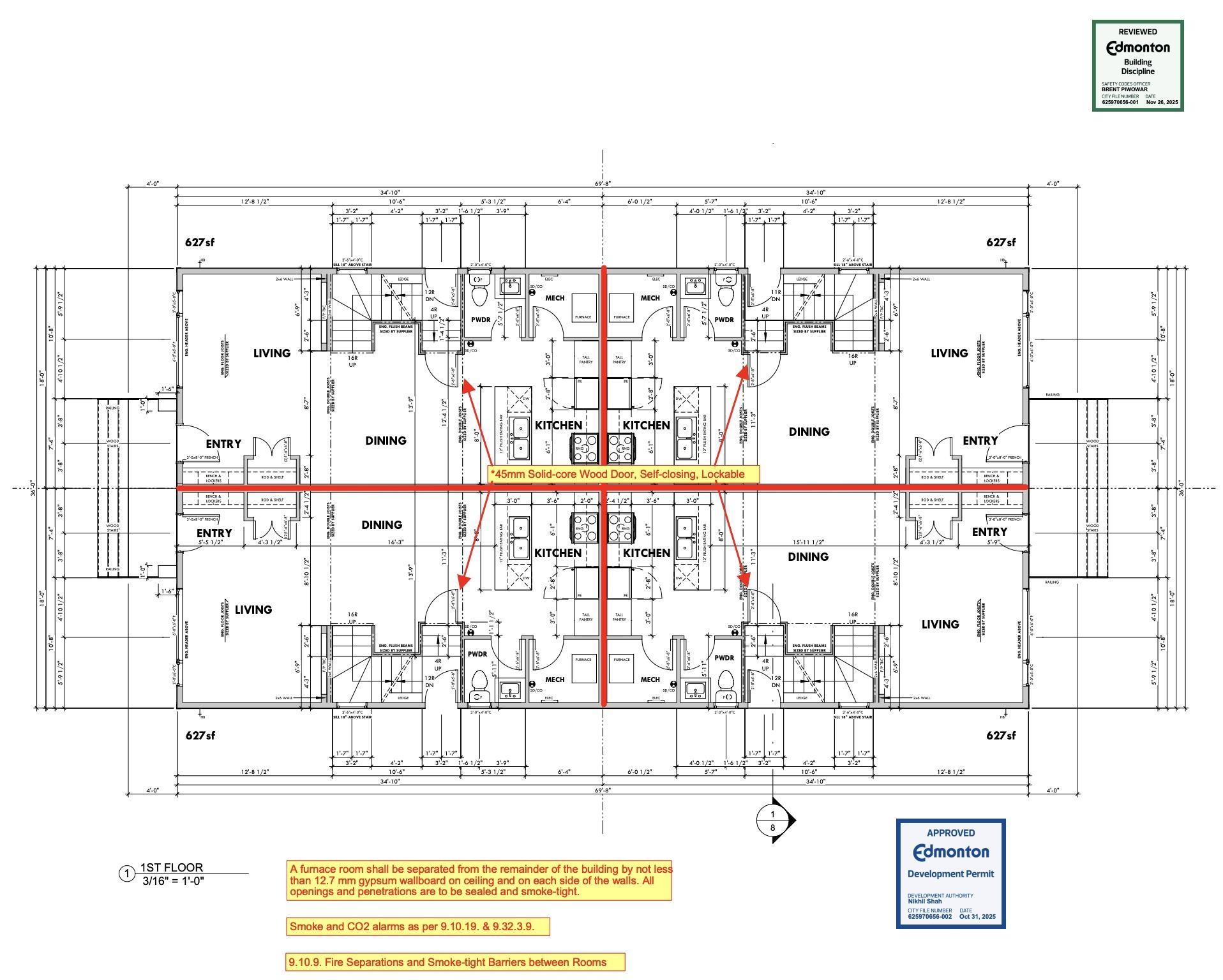
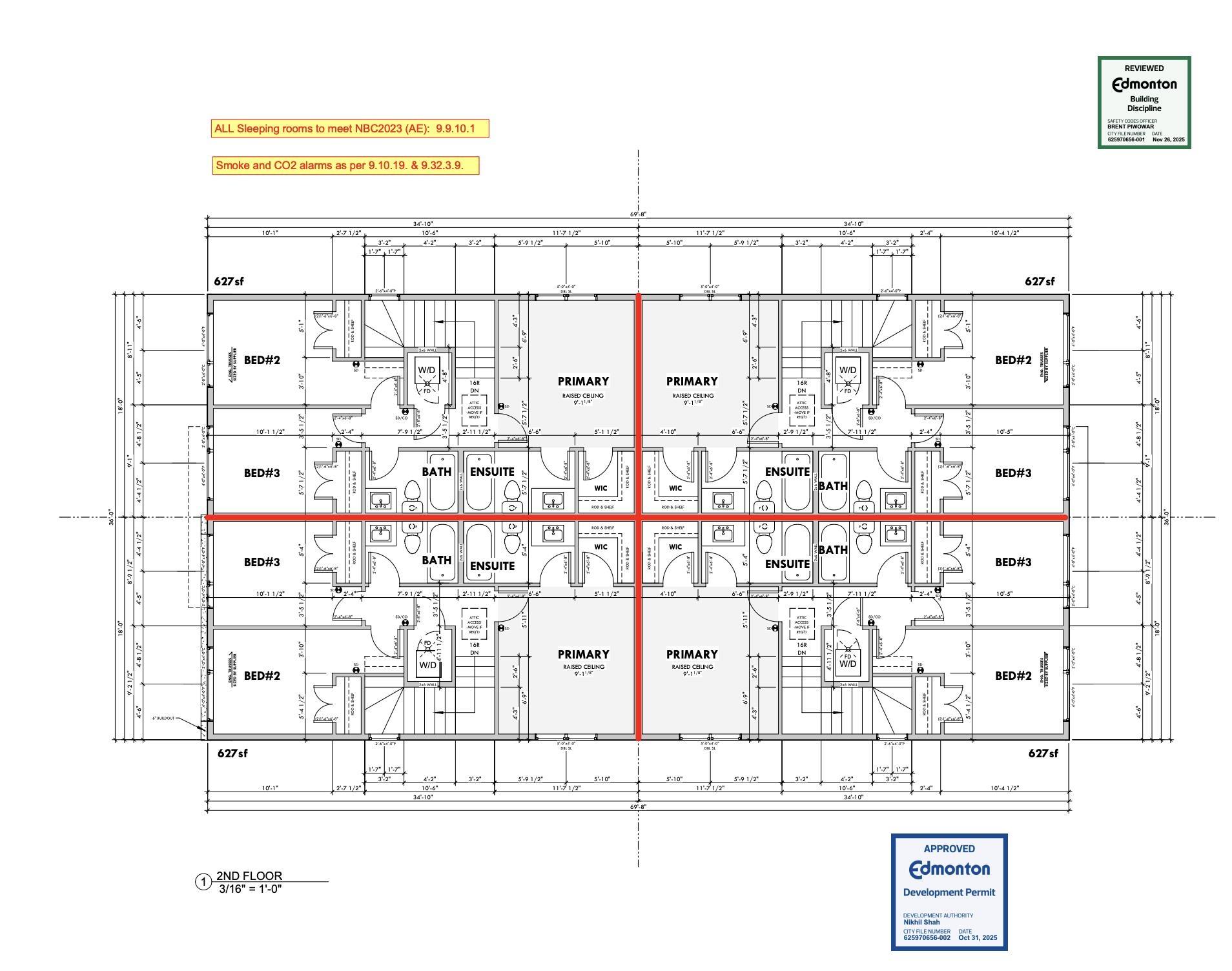
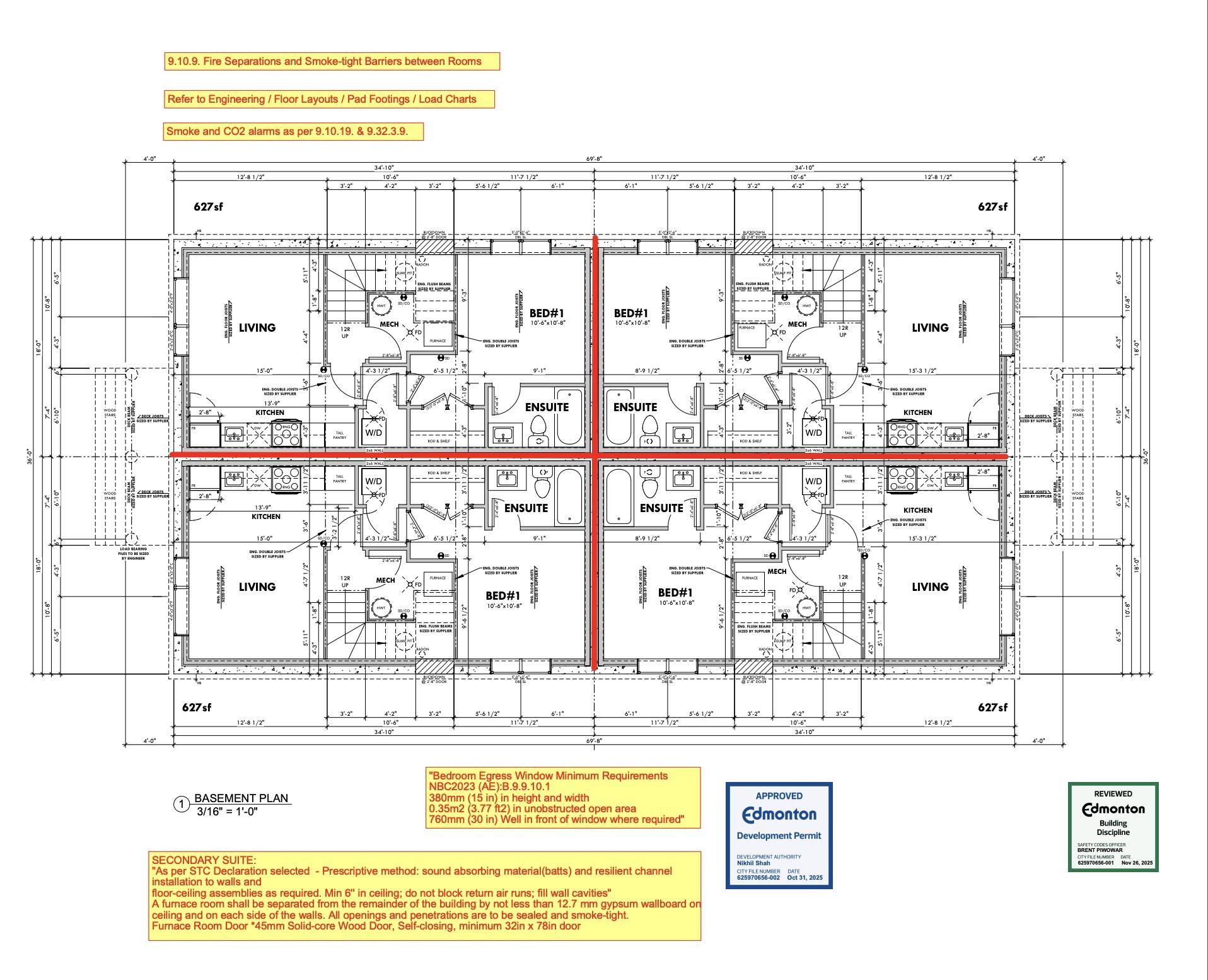
Proposed four-plex located in the established community of West Jasper Place. Development Permit and Building Permit approved. The fourplex offers approximately 5,016 sq. ft. of above-grade living area, averaging 1,254 sq. ft. per unit, with 16 bedrooms and 16 bathrooms. Each unit features an open-concept main floor, an upper level with three bedrooms, including a primary bedroom with an ensuite, and a basement with a legal secondary suite providing a separate entrance, kitchen, living area, bedroom, bathroom, in-suite laundry, and separate mechanical rooms for the main and secondary dwellings. Exterior finishes include a stucco front elevation, triple-pane windows, precast concrete steps, driveway, four-car garage, and full landscaping. Situated on a tree-lined street with access to schools, shopping, and public transit. Construction is anticipated to begin shortly, with completion projected for early 2027. Property is intended to qualify for the CMHC MLI Select Program.
Listing Information
- Prop. Type:
- Quadruplex
- Property Style:
- 2 Storey
- Status:
- Active
- City:
- Edmonton
- MLS® Number:
- E4470525
- Bedrooms:
- 4
- Neighbourhood:
- West Jasper Place
- Area:
- Edmonton
- Province:
- Alberta
- Listing Price:
- $2,179,999
General Information
- Year Built:
- 2026
- Total Square Feet:
- 5016ft2
Additional Information
- Basement Dev:
- Full, Finished
- Parking:
- See Remarks
VIP-Only Information
- Sign-Up or Log-in to view full listing details:
- Sign-Up / Log In
This property is listed by MaxWell Polaris and provided here courtesy of
Kyle Rossiter.
For more information or to schedule a viewing please contact Kyle Rossiter.
Data is deemed reliable but is not guaranteed accurate by the REALTORS® Association of Edmonton.
