Not Logged In. Sign In Now | Register
Courtesy of RE/MAX Real Estate.
Data was last updated 2025-06-25 at 20:18:11 GMT
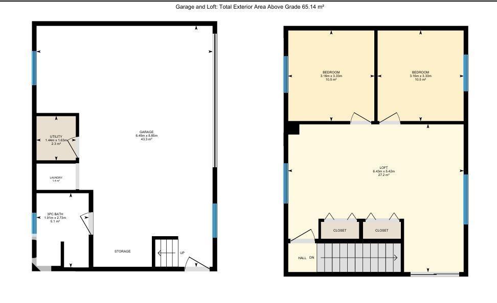
This Lakefront Bungalow in Grandview was completely renovated in 2023 with hardie board siding, stone, and shingles on the outside, with a complete make over on the inside! It also has a double detached garage with 701sq/ft of living space above! Through the fenced back yard, and complete wrap around deck to enter the home with an open concept Dining room, Kitchen, and Living room with large windows throughout providing lots of natural light and views of the lake. Two bedrooms and a 3 piece bathroom complete the floor plan of the modernized cabin home that also has Air Conditioning. The Garage is heated with a bathroom, and laundry with steps up to the guest living space. The loft is made up of two more bedrooms and a spacious family room with a patio door to the balcony deck. The property is beautifully landscaped with nothing left to do but unwind and enjoy life at the lake! The lot beside is also available for added space if needed.
Listing Information
- Prop. Type:
- Detached Single Family
- Property Style:
- Bungalow
- Status:
- Active
- City:
- Rural Wetaskiwin County
- MLS® Number:
- E4477594
- Bedrooms:
- 2
- Neighbourhood:
- Grandview_CWET
- Area:
- Edmonton
- Province:
- Alberta
- Listing Price:
- $749,900
General Information
- Year Built:
- 2002
- Total Square Feet:
- 842ft2
Additional Information
- Basement Dev:
- None, No Basement
VIP-Only Information
- Sign-Up or Log-in to view full listing details:
- Sign-Up / Log In
This property is listed by RE/MAX Real Estate and provided here courtesy of
Kyle Rossiter.
For more information or to schedule a viewing please contact Kyle Rossiter.
Data is deemed reliable but is not guaranteed accurate by the REALTORS® Association of Edmonton.
