Not Logged In. Sign In Now | Register
Courtesy of RE/MAX Real Estate.
Data was last updated 2025-06-25 at 20:18:11 GMT
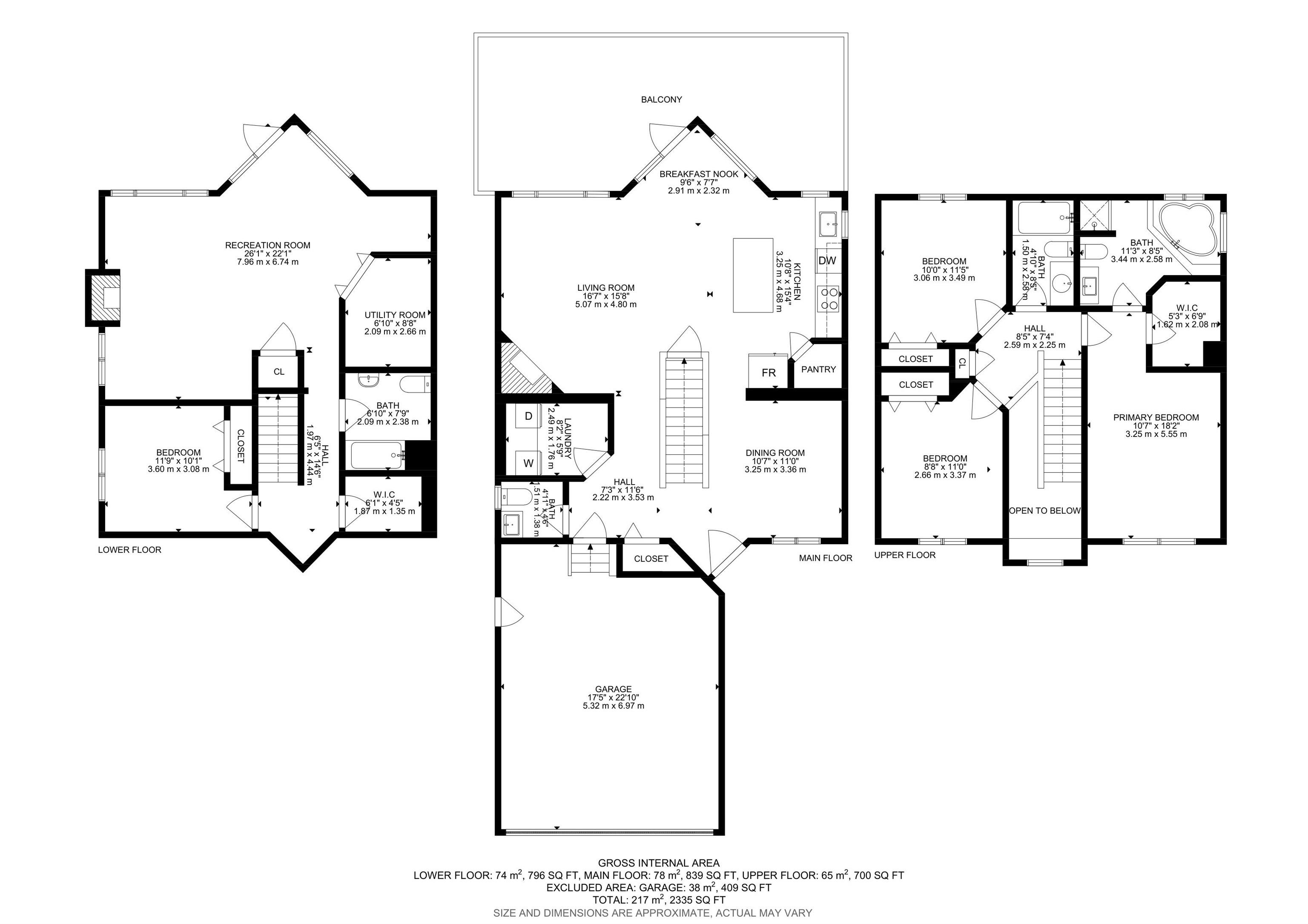
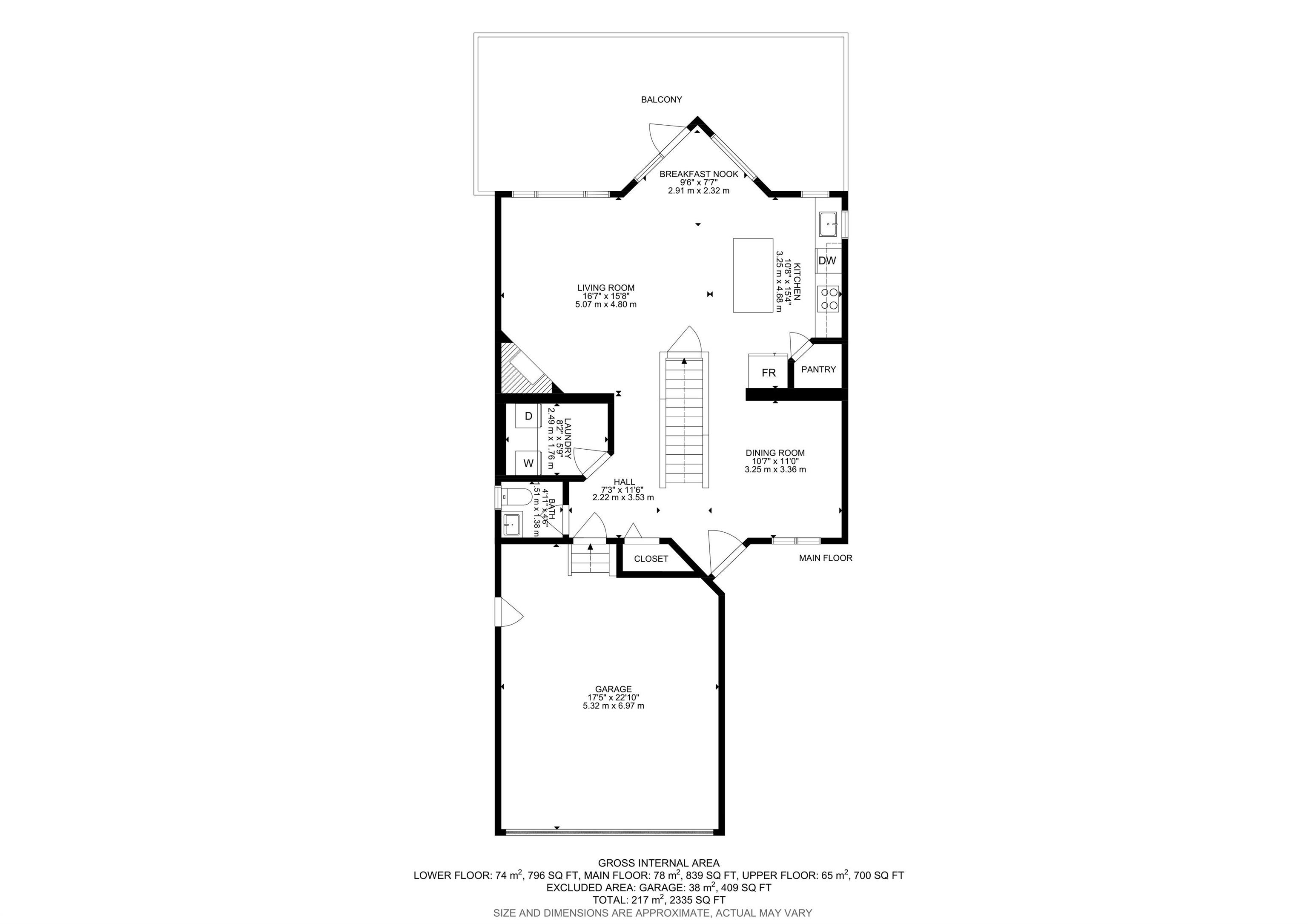
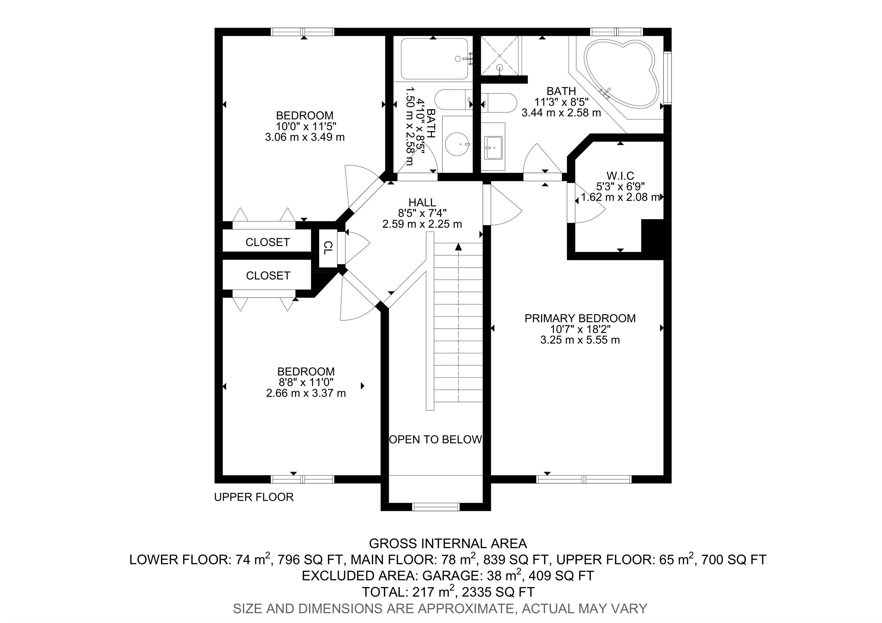
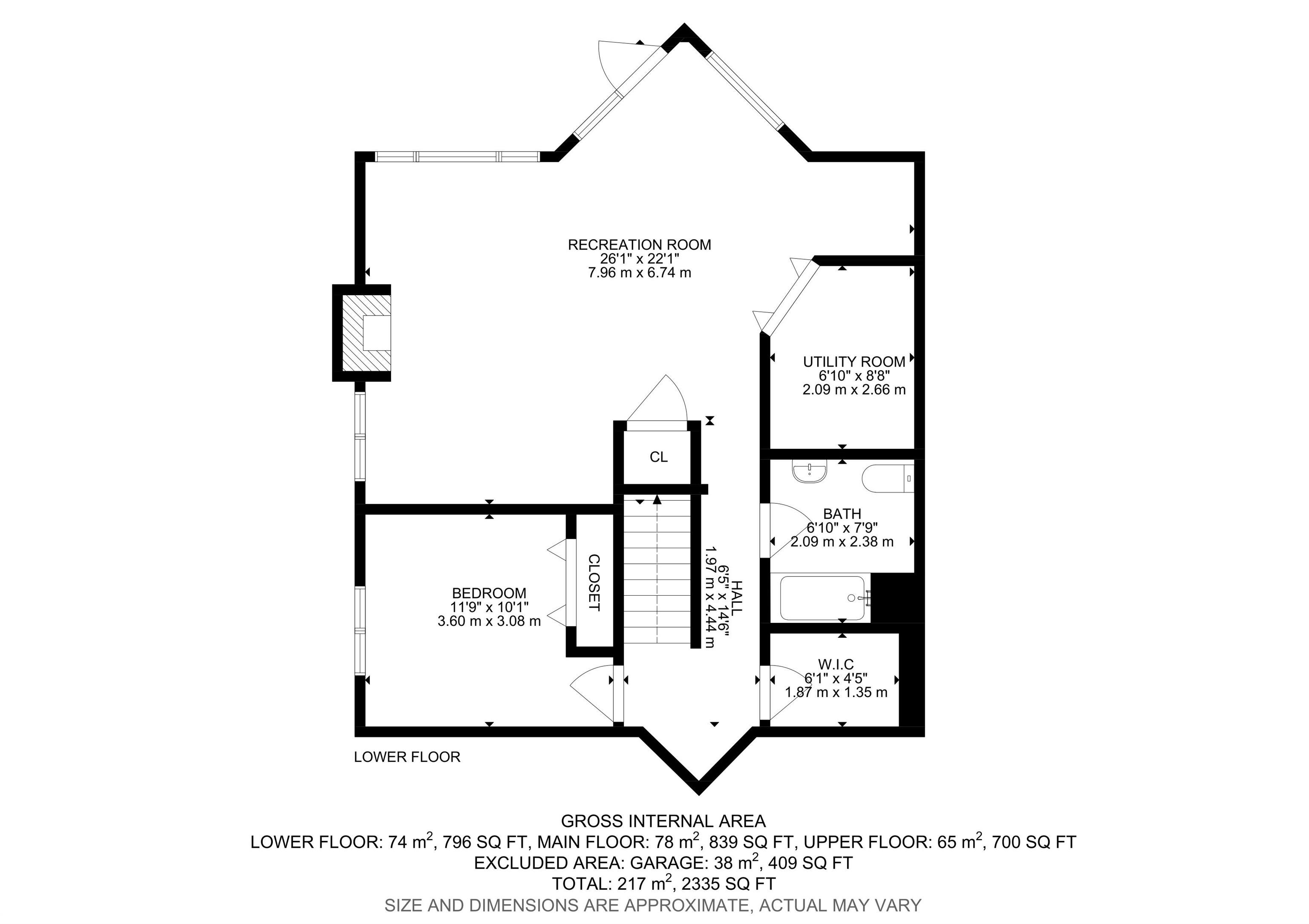
Beautiful WALKOUT 2-storey BACKING the GOLF COURSE in Stony Plain! Over 1500 sq ft PLUS fully finished basement. 18' ceilings greet you as you enter. Front flex room could be a great dining space, home office or formal living room. NEW kitchen is gorgeous with beautiful white cabinets, quartz countertops, corner pantry & updated appliances! Great breakfast nook with room to expand for guests! Large living room for more entertaining with gas fireplace. Tons of natural light through the windows looking onto the mature trees of the golf course. MAIN FLOOR LAUNDRY! Upstairs the master suite is a great size with large walk in closet and newly renovated 4pc ensuite. 2 more bedrooms are great for kids, guests or a home office. Walkout basement has large rec room space. It's even fully plumbed for wet bar or future 2nd kitchen. Another bedroom & 4pc bath. Large deck is great to spend a warm summer evening & yard is fully landscaped including picture, perfect Koi pond. It's your own private oasis!!!
Listing Information
- Prop. Type:
- Detached Single Family
- Property Style:
- 2 Storey
- Status:
- Active
- City:
- Stony Plain
- MLS® Number:
- E4480040
- Bedrooms:
- 4
- Neighbourhood:
- The Fairways_STPL
- Area:
- Edmonton
- Province:
- Alberta
- Listing Price:
- $549,900
General Information
- Year Built:
- 2005
- Total Square Feet:
- 1539ft2
Additional Information
- Basement Dev:
- Full, Finished
- Parking:
- Double Garage Attached
VIP-Only Information
- Sign-Up or Log-in to view full listing details:
- Sign-Up / Log In
This property is listed by RE/MAX Real Estate and provided here courtesy of
Kyle Rossiter.
For more information or to schedule a viewing please contact Kyle Rossiter.
Data is deemed reliable but is not guaranteed accurate by the REALTORS® Association of Edmonton.
